一款基于AutoCAD2007~2016平台开发的变电构架基础计算及绘图软件,软件包含基础计算和绘图两部分内容。软件根据程序导入或手动输入的支座反力,验算基础的各项承载力,包括基地平均应力、基地最大应力、上拔力、杯口插入深度、倾覆弯矩、抗冲切、基础配筋等,验算满足要求后,绘图程序按照计算的结果进行基础的绘图。
1、基础计算系统参数设置对话框:

通过上述对话框中参数的设置,可以确定基础计算相关的参数。
2、杯口基础验算对话框:

通过上述的对话框,可以验算基地平均应力、基地最大应力、上拔力、杯口插入深度、倾覆弯矩、抗冲切、基础配筋。
3、将上述的计算过程导出到excel文件中:

4、将计算设置的参数导入到绘图软件中或直接在绘图软件中输入参数,进行绘图:
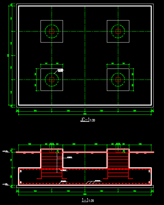
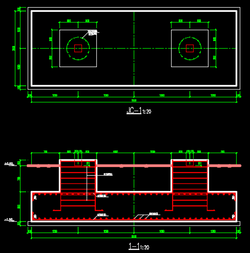
具体绘制的施工图如下:

|